top of page
![]() Sketch |
|---|
![]() Existing Photo.jpg |
![]() Proposed Elevations.jpg |
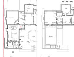
![]() Proposed Plans |
TWO PARISHES, BUCKINGHAMSHIRE
2021
Innate have submitted a planning application for the conversion of an existing single storey garage into additional living space for this property in the rolling hills of Buckinghamshire. By connecting the garage, a courtyard around the existing pool will be created, and a modern lounge and dining room off of the patio encourage indoor/outdoor living through the use of bifolding doors.  A roof terrace above makes the most of the countryside views that surround the property.
Two Parishes: Recent Projects
bottom of page




